※壺屋焼物博物館まで
壺屋の路地道が好きだ 秋風鈴
神原のバス停。1237。壺屋交差点。
少し路地に入るか。1241、散髪屋SABIの向こうを右折。20m先、坂の上から左折して細道へ(→地理院地図)。

開南せせらぎ通りの20m北の裏道、というだけなんですけど──かなりの違和感です。一歩入れば別光景、というより、表通りの澄ました佇まいが仮面で裏には本来の壺屋がある、という感じでしょう。

出たアスファルト道を右折北東行(→地理院地図)。──GM.ではまっすぐ北西は行き止まりだったからですけど、地理院地図では通じてます。進んでも面白かった。

只だ、この北北東路地も、何とも味のあるくねり方です。地図上で見るより、実際歩いた感じはもっとウネッてます。

その先のT字を左折。
──多分このT字(→地理院地図)は、一つ北(→地理院地図)のつもりを間違えたんだろうと思います。
ad.壺屋一丁目19。

初めての那覇市壺屋の博物館
11250三叉路(→地理院地図)。左へ。──さっきの地点で迷ってるので、もう場所を見失ってます。
駐車場を横切ったら民藝与那覇(→GM.)の前に出れました。
1258、壺屋焼物博物館。何と初めてなんてすけど……寄ってみます。

壺屋は
①首里城に近いため管理しやすく,
②近くからは陶土が採れ,
③登り窯を作るために必要な斜面地もありました。また,
④海や川に近く,材料(陶土や薪)やできあがった製品を船で運ぶのにも適していたため,
この地が選ばれたと考えられています。〔案内板〕※丸付き数字は引用者
──う〜ん。やはりよく分かりません。
この位の条件なら他でも揃ってるはずです。どうも「なぜ壺屋だったのか」は、未だにピンときません。
巻末参照。
壺屋と泡盛とクンディとカラカラ

壺屋の代表する琉球陶器と、沖縄のソウル・アルコール 泡盛を結びつける言説が色濃いのは、沖縄学の巨人・東恩納寛惇(1882-1963)さんに由来するみたいです。
何でも東恩納さんが東南アジアに行ったとき、タイ地酒のラオ・ロン※を飲んで「似てる」と思った(1934(昭和9)年「泡盛雑考」で発表)というのが「論拠」。それが長らく信じられてきましたけど、よく考えると東恩納さんの「旅行記」です〔後掲OKINAWA41〕。
萩尾俊章氏は「タイやマラッカなど東南アジアから蒸留酒が伝来したことも事実なら、福建ルートからも蒸留酒が渡ってきたのも十分に考えられる。蒸留酒の伝来は多面的かつ重層的である」とも語っています。東南アジアルート、福建ルート、この2つの道を通って、琉球に蒸留酒を造る技術は伝わってきたと、現在では考えられています。〔萩尾俊章※←後掲〔後掲OKINAWA41〕〕

騎馬民族仮説と、DNA研究による実際の日本人流入経路と同じ現象です。ラオロン単線の泡盛起源説は、控え目に見ても前掲萩尾説ほどの複線構造の方が妥当性があります。もっとダイナミックに言えば、下記石毛説の「カビ酒」文化圏の膨大な時空の中で、その位置的かつ流通的なロータリーにあって、揉まれ揺すられ熟成した酒が泡盛であろうと想定されるのです。
徳川将軍家は、その中の数百壺をお裾分けしてもらったに過ぎません。


本稿からは脱線なんで一応展開にしましたけど、ここだけの話……お酒好き必見の石毛さんの世界伝統酒分布論です。
さて、

けれども。この容器は紀元前から、かつインドを根源とする広大な時空から到来したもののようです。
ケンディーはタイでは仏具として使われます。沖縄から九州南部にかけて,泡盛や焼酎という蒸留酒の文化とともにカラカラと呼ばれる酒器が使われるようになります。〔案内板〕

(引用者追記∶ケンディは)持ち手のない水差しを表す言葉です。もともと、サンスクリット語で水差しを表すクンディ(KUNDI)に由来し、マレーシア・インドネシア地方に伝わり、ケンディ(KENDI)と称されるようになりました。〔後掲一生一石〕
──一応、サンスクリット又はその後のインドでのこの語をググってみましたけど、どうにもヒットがありません。少なくともかなりマイナーな用字と推測され、はっきり存在が辿れるのは東南アジア以降に限られるようです。
ただ、元々の用途として伝わる下記の行動からは、インド起源を確信させられました。つまり、多分衛生上、コップを使わない彼らの習慣から発した器と考えられるからです。
基本的な形と使い方は、「持ち手がなく、注入口に上から液体(主に水)を入れ、器の筒状の部分を手でつかみ、適当な高さに掲げて、側面にある注出口から液体を口に注ぐ」ものです。〔後掲一生一石〕

b)ヒンドゥー教の不浄感(「自分の皿によそわれたものは、不浄が感染しないように、決して他人に取り分けてはいけない(不浄は血液や唾液で感染すると考えられているため)〔後掲観光庁〕)
c)水資源が一般に貴重であるため、多くの人たちと水を分け合えるように
なお、韓国でも「戦場飲み」としてペットボトルに口を付けない飲み方をする一定層があるけれど、韓国国内では「異性と同じペットボトルを飲んで『間接キス』と周囲に思われないための防衛策」と認知されているという。〔後掲FUNNY Tips〕
紀元前2世紀頃に、インドで神聖な容器として用いられていたクンディが、インドとインドネシアの間に貿易が始まると、インドネシアへ伝わり、次第にインドネシアでも、クンディを使う習慣が定着し、自らこの器を作るようになりました。〔後掲一生一石〕
即ち、クンディの源流がインドだと判明しても、そこから日本までのどの段階のものが伝わったものかは特定できません。源流の祭器としてのクンディがインド本国では見当たらないのですから。あえて言えば、中国で肩と頭の機能が入れ替わった浄瓶が最も親しいくらいです。
紀元前までさかのぼるケンディのルーツは、インドで祝いの行事に用いられていた「クンデイ(KUNDI)」という、水を冷たく保つ容器だといわれています。神聖な容器だったクンディは、2~3世紀になると貿易でインドネシアなどへ運ばれていきました。そうしたなか、ケンディと呼ばれるようになり、神聖な器としてだけでなく、庶民の水飲み容器としても広く使用されるようになっていきました。また同時に、東南アジア(タイ、ベトナム)や西アジア(イラン)などにも伝わり、各地で製作されるようになっていきました。〔後掲みろくや〕
つまり、クンディの伝播もまた、細かく見ていきますと、すんなり説明できるような単線の解釈はどうにも難しい。共通していたのは「双口澡灌」(二つの口を持つ壺)という「変な壺」として長年に渡ってウケがよく、いろんな習慣のいろんな人が寄ってたかって独自の用途を考案して使っていった、というところなのではないでしょうか?
見えない中世・壺屋
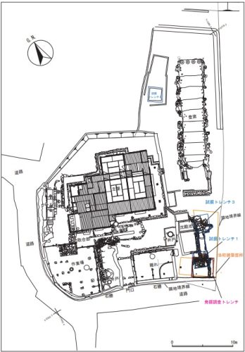
多分、そこから来る「中世の壺屋って本当にあったの?」という疑問を払拭するために特に注目される遺跡が、まさに那覇市立壺屋焼物博物館の建設によって発掘されるに至った「ニシヌ窯」(北の窯)その他の遺構らしい。
ニシヌ窯は,明治末まで存在したといわれますが,その場所については特定されていませんでした。ところが,博物館の建設工事にあたって,予定地から窯跡が発見され,発掘調査によって1号窯・2号窯・3号窯と,3つの窯跡が確認されました。そのうちの3号窯は,明治末まで使用されていた登り窯であると考えられています。〔案内板〕
この日、博物館の裏手のガラスの向こうに土塊が盛り上がってて、何かと思ったらこれがニシヌ窯でした。まさにここに埋まっていた、という迫力は、個人的には敦煌モノの衝撃がありました。

ありましたけど、それと客観的知見は別物です。壺屋のアイデンティティに関わるだけに、研究者の筆は非常に慎重なのですけと……
筆者はニシヌ窯跡出土資料を資料整理する機会に恵まれ、順次整理・報告することに努めている。整理の結果、瓶・徳利類は、層序が新しくなるのに伴い口径が小さくなる、頸部が短くなる、器厚が薄くなるといった製品の小型化の傾向が見受けられた。一方で甕類及び厨子甕類は、層序が新しくなるのに伴い口径が大きくなる、口縁部の外反化といった製品の大型化の様相が確認された。そして全体的に胎土色調が黒褐色系から赤・橙色系への変化が見受けられた。また遺物の整理状況から、窯跡の使用期間は18世紀第3四半期から明治末までであることが明らかとなった。〔吉田健太「壺屋古窯群における分布と編年」 ←後掲東洋陶磁学会、6枚目〕
考古学的知見では、壺屋から出る最古の陶器は1775年以降のものとされるのです。つまり球陽の1682年より百年近く経った時代です。
タイプの変化は、当面何を意味するのか分かりません。ただ通常は、「売れ筋」の流行を追っていたはずです。
次の東ヌ窯は、最新の発掘にして、伝統的な陶工・新垣家のものとされる、壺屋の典型と考えられている登り窯の発掘報告です。
近世以前の壺屋は、南(ヤチムン通り~神原小学校)に向けて下る窯を構築しやすい傾斜が続いた地形であったと考えられる。当該地においてまず言えることは水[竹/皺]遺構(4番目の槽およびオロと考えられる槽)の構築である。時代としては18~19世紀以前と想定される。その中で、(略)湧田古窯群からも確認された「洲濱形」の窯道具が確認されたことは特記する。(略)東ヌ窯は連房式登窯と呼ばれる構造の窯であり、壺屋では施釉陶器の焼成に用いられていた。(略)沖縄における連房式登窯の出現を1730年以降の年代と考えるならば、東ヌ窯の成立については18世紀中頃から19世紀前半頃としておくことがもっとも妥当と考えられる(池田2003)。〔後掲那覇市2021、64枚目P54〕
どうやら、考古学的な知見を純粋に見ると、ぎりぎりで18世紀半ばに始まったかも?という位です。球陽の1682年壺屋窯成立には、どうしても約百年足りないのです。……もちろん、戦後からの市街化が進んだ地域で、なかなか正確な特定がし難いのも事実ですけど。

希望が丘に何かが在つた 門火
(地点)

希望が丘公園へ。今回はここへも寄りたい箇所がありました。西外周を、大階段下へ曲がりくねった階段を進むと──コンクリートの祠。「1964年7月20日」の手書き記名の井戸の上に確かに「水神」と書かれてる。隣にガジュマル。


位置は花笠食堂裏。──現在(2024年以降)は牧志下町屋台村(→GM.)の南外縁になってますけど、この時はまだそれもない、国際通り裏の清寂が残ってる場所でした。
しばらくの間 一見お断り

桜坂の映画館前の飲み屋に──「しばらく一見は来るな」貼紙。時々田舎で拝見したけど──確かに書かないと「何が悪い!?」と開き直る観光客がいるんでしょね、実際に。
それで、と言うわけじゃないけど、夕方まで少し休んで再出撃。
(地点)
農連市場へ行こうとしてたんだけど──
大平商店街で足が止まりました。大分新しく店が出来てるぞ?
こんな店あったっけ?ここもTシャツ着た新しい雰囲気。
1656やぎ料理 はな ※翌年消滅
やぎ汁450
1300円だけど……この時間から出来上がってるおじいが喋りまくってるけど──カウンターから離れた席があるし……。
一度入ってみたいぞ!

コロナ下に山羊が増殖して生渋
なかなか変わってる……臓物的、というんだろうか。古い沖縄人からすると……きちんと加工出来てなくて素人的というのかもしれないけれど、韓国的な臓物煮としてはとてもよく出来ている。いや、広島の田楽汁に似ているのかもしれない。
見よ、次の皮めいた網タイツ模様!──いや、臓物好きにはたまらないヤギでした!

前回は糸数で自称沖縄唯一の自販機に、それなりに興奮しましたけど──
たった3カ月で増えた──のか?それとも前回からあったのか?実はこの後の山原でも見つけましたし、結構あるじゃないか、山羊!
実際、この自販機が出現し初めてから、沖縄では毎日普通に山羊食えるようになりました。めでたしめでたし!


■レポ:本当に壺屋だったのか?
本稿で既に、壺屋の陶器の考古学的年代は意外に新しい、という「印象」を記しました。
巻末ではさらに、琉球王国代に陶工の中心だったのは、本当に壺屋だったのか、と疑ってみようとしています。ある意味、禁断かもしれませんけど、まあワシはナイチャーですからお許しを。
球陽巻七「移設陶窯于牧志邑地」
3階で特別展をやってました。「湧田古窯展」→那覇市立壺屋焼物博物館。

訪問時に、1682年という時点の重要性は認知していなかったはずですけど…なぜかこの時に撮った「焼締ボージャー厨子」の推定年度がぴったりこの年でした。
1682年は、球陽の記す壺屋発祥年です。
琉球王国の正史である『球陽』によれば、那覇市壺屋の沿革は1682(尚貞十四)年に知花(沖縄市美里)、宝口(那覇市首里鳥堀周辺)、湧田(那覇市泉崎周辺)等にあった壺窯を真和志間切牧志邑の南、現在の壺屋地区に移転統合したことに始まると伝える(移設陶窯于牧志邑地 昔有壺屋在美里郡知花邑首里寶口那覇湧田等地共計三所至于是年其三地陶窯移在牧志邑南以爲一所也(球陽巻七))。その後、中山伝信録では「壺家山」、乾隆二年帳には真和志間切の新設の村として「壺屋村」の記載が確認される。三ヵ所の陶窯が統合された理由は明らかではないが、壺屋地区が首里に比較的近い場所であったこと、原料となる陶土および薪などの材料の確保・運搬・製品の積み出しなどが容易であったことなどが考えられる。特に陶土については、真和志間切の識名台地および壺屋周辺は無釉陶器に適した黒土・赤土が取れたという。また戦前壺屋には十数基もの登窯があり、陶工達は半農半陶の生活を送っていたといわれている。また集落の中には3つの村クムイ(池)と5つのカー(井戸・井泉)があり、水に不自由することはなかったという。以降、壺屋は沖縄本島内において陶器生産の一大生産地となり、多種多様な陶器が製作されてきた。〔後掲那覇市市民文化部2021、16枚目p6〕
本文で記した、博物館の展示する「壺屋選定理由」はほぼこの内容を転記しているようです。この記述によると、17C後半には知花・宝口とともに湧田の窯も、壺屋に移転統合されました、めでたしめでたし、ということになります。
ところが、20C末に県庁下から考古学的に姿を現した湧田古窯跡は、球陽が移転統合したと主張する規模を遥かに超えたものでした。
滅びなかった湧田古窯

湧田古窯群の位置は要するに県庁泉崎交差点角。

湧田窯と南京の窯との類似性

19世紀後半に描かれた「首里那覇図」には,湧田窯と思われる場所に窯と煙が描かれています。湧田窯の廃窯時期は,現在のところまだわかっていませんが,壺屋統合後もしばらく稼働していたと考えられます。〔案内板〕
研究者の定説では、上記のように、湧田古窯は「壺屋移転統合前後の残滓」ということになるのですが……この規模がそう考えられるでしょうか?
湧田古窯跡は、沖縄県庁舎建設に伴い確認され、1986(昭和 61)年に遺跡の範囲を確認するための調査が行われました。続いて、1986(昭和 61)年から 1995(平成7)年の間に、行政棟、議会棟、警察棟、県民広場地下駐車場部分の順で発掘調査が行われました。〔後掲沖縄県立埋蔵文化財センター 2016〕
〔後掲沖縄県教育庁文化課1999、18枚目p6〕-203x300.jpg)
現・県庁ブロックとその南のハーバービューホテルのブロックを合わせた範囲です。試みに県庁敷地から中間の市立開南小学校・幼稚園を含めてハーバービューホテルまでの面積を地理院地図で粗く計測すると17万㎡を超えます。現・壺屋地区は二丁目まで含むと27万㎡近いですけど、一丁目のみだと15万㎡〔後掲townchewck〕。
今からちょうど 400 年前の 1616 年に、当時の琉球国王であった尚寧(しょうねい、在位期間:1589 ~ 1620 年)が薩摩藩に懇願して朝鮮人陶工の張一六(ちょういちろく)(張献功(ちょうけんこう):帰化して仲地麗伸(なかちれいしん)に改名)、安一官(あんいっかん)、安三官(あんさんかん)の三名を招聘して湧田村で窯業が始まったとされています。湧田村と湧田窯は、現在の沖縄県庁敷地からハーバービューホテルのある楚辺や、壷川に至る一帯に所在したと考えられています。
沖縄県庁舎建設の際に、沖縄県教育委員会が 1986(昭和 61)~ 1995(平成7)年度までの 10 年間にわたり湧田古窯跡の発掘調査を4度実施しました。県庁舎行政棟部分に係る発掘調査では、石囲いの井戸(5基)、廃棄された屋瓦(やがわら)や瓦(せんかわら)などを再利用して屋敷内を通る排水溝の縁石の代用品や、屋敷の基礎などに使用された遺構が検出されました。
また、平窯と称される瓦窯(かわらがま)が6基発見されました。平窯そのものは日本本土でも古くからみられますが、湧田窯のような形状をもつものはなく、その類例は中国や東南アジアに分布するといわれています。この平窯6基の内、良好な窯3基は切り取って沖縄県立博物館・美術館や那覇市立壺屋焼物博物館などで公開と保存がなされています。〔後掲沖縄県立埋蔵文化財センター 2016〕


うち、明らかに矛盾があるのは、年代だと思います。1616年に薩摩藩から招へいした朝鮮人陶工は、多分朝鮮出兵で連行された人々です。かつ、その後も発掘されたほどの、つまり現代に至る最盛期の壺屋以上の繁栄をした窯を、首里王権が66年間程度で廃業させることがありうるでしょうか?いや、もしかしたら「廃業命令」を出したかもしれないけれど、現実に湧田古窯が営業し続けたことは、遺跡の規模から相当明らかになっていると思えます。
[赤丸]湧田等-[青丸]壺屋〔後掲那覇市2021、19枚目p9〕-300x205.jpg)
1682 年に知花窯(ちばながま)・宝口窯(たからぐちがま)と共に壺屋へ統合された後、湧田窯がどのような変遷を辿ったのか、現在のところはっきりとしたことは不明です。しかし発掘調査の成果によると、おそらく 18 世紀以降も窯業が営まれていたと考えられます。この時期の特徴には施釉陶器(せゆうとうき)生産の本格化が挙げられ、灰釉(かいゆう)・鉄釉(てつゆう)・緑釉(りょくゆう)・海鼠釉(なまこゆう)など様々な釉薬が使用されていました。
ちなみに、文献史料や絵画などからも、18 世紀以降の湧田窯の様子が窺えます。琉球の正史『球陽』には、仲村渠致元(なかんだかりちげん)が湧田で薩摩から伝授された「磁器」を焼いた(1731年)との記述や、瓦の粘土採掘地及び窯場を現在の美栄地(みーじ)あたりから湧田に移した(1799 年)との記述があり、また 19 世紀後半に描かれた「首里那覇図」にも、壺屋及び湧田と思われる場所に登り窯と煙が確認されています。〔後掲沖縄県立埋蔵文化財センター 2016、12枚目p10〕
このように追っていくと、
1)壺屋が湧田より窯業経営上有利だった根拠は何もない。
2)球陽が記録する首里王権の壺屋統合は成功しなかった(又は完全実施されなかった)。
3)戦後、壺屋のみに窯業が集中するのは、戦後の経緯(壺屋の方が民間開放が早かったから)のみによる。
壺屋の早期解放と陶器製造産業先遣隊

1945.11.15 牧志設営隊136人入域(注2)。
11.20 産業復興の名目で陶器製造産業先遣隊 (103名)が壷屋一帯に入域、壷屋区役所設置、都市再建開始。
この頃、那覇で移住・生活できる地域は牧志町・壷屋町の 2町と真和志村の桶川・与儀(畑、低地)などのみ。
旧市内の牧志町・壷屋町の 2町を除く 22町(市政施行時24町)に帰住できない那覇市民はこの狭い地域に居住。
12. 首里市への移動許可となるが、人が住めるのは鳥堀 2丁目周辺のみといわれる(翌年から居住はじまる)。
1946. 2. 小禄村の津真田・高良地域の一部解放(小禄村民受け入れ地として指定)
7.10 真和志村への移動許可。 /8.6小禄への移動許可。
〔総合都市研究第53号 1994 沖縄県那覇市の住民組織について - 自治会」研究ノート(その 1)-後掲ず〕
※出典総合都市研究第53号は現在未掲載
江戸期に実質操業したのは湧田窯
薩摩が朝鮮人陶工を「転売」してくるまで、琉球の陶器には液体を完全に漏らさない品質は有していなかった、というのが考古学側の知見です。つまり、島津侵攻後に琉球窯業は稼働しました。
この説明に合わせて、江戸上りの献上泡盛が「例示」されることも多いようです。
当時の琉球で無釉陶器が必要になった理由を考えてみましょう。
無釉陶器が登場する前に琉球で生産されていたのは瓦質土器(がしつどき)です。瓦質土器に多く確認されるのは口が開く鉢形(はちがた)の器種(きしゅ)で、口がすぼまる壺形や瓶形はほとんどみられません。また瓦のように低火度(ていかど)で焼成(しょうせい)しているため吸水性が高く、液体の貯蔵を目的とした製品には不向きです。
琉球は 17 世紀以降に近世日本の幕藩体制下へ組み込まれて以来、一般に「江戸上り」と称される使節の派遣が義務づけられ、その際の献上品には必ず焼酎(泡盛)が含まれていました。記録をみると、焼酎(泡盛)は壺に入れて運ばれたようですが、瓦質土器がこの用途に適しているとは言い難いため、液体の漏れない新たな製品が必要になったと思われます。無釉陶器は高温で焼成しているため吸水性が低く、また瓦質土器にはほとんどみられなかった壺形や瓶形の器形が登場する点も考慮すると、酒を運搬する容器の需要が増加したことは、無釉陶器誕生の要因と無関係ではないと思われます。〔後掲沖縄県立埋蔵文化財センター 2016、11枚目〕

--とはいえ年最高(1714年)で32壺です。いかに将軍様へのご献上品でも、こんな需要で技術革新が図られたとは思えません。
つまり、江戸上りは単なる例示で、同様に泡盛のほか液体を入れて輸出するケースが沢山あったことになります。
これに加え、湧田の窯業が「壺屋移転」後も継続した理由を考え合わせる必要があります。地理的にまず考えられるのは、海が近い、端的に言えば久米村が近いという理由だと考えます。交易量が多い場所において、ついでに輸出する品が開発されるのは、泉州の織物、長崎の波佐見焼ほか枚挙に暇がありません。
久米村から帰途につく船が、船倉の隙間に載せた琉球陶器は、湧田古窯で製造された。これが壺屋窯業の前身であろうと想像します。
なぜ湧田窯は壺屋に統合されたことになっているのか?
では、この湧田窯がなぜおおっぴらに語られないのか。裏をかえせば、なぜ湧田窯は壺屋統合されて無かったことになっているのか。
それは、湧田窯陶器が極度に輸出需要に特化しており、かつその琉球の「輸出」が日朝両属の仕組み上、非常に特殊な形状をとっていたことに起因すると想像します。シンプルに言えば、イミテーション製造に相当程度傾いた製造ラインがあったろうと考えます。
首里城跡や中城御殿跡(なかぐすくうどぅんあと)などからは、まれに精緻なつくりの施釉陶器(せゆうとうき)が出土します。これらは胎土(たいど)・器形(きけい)・文様(もんよう)・釉薬(ゆうやく)などの特徴が他の施釉陶器と異なり、同時期に輸入された本土産磁器や中国産磁器を模倣したと考えられるもので、施釉陶器の中で
も非常に上質な製品です。これらの存在は、当時の琉球が持っていた陶器生産技術の高さを示すものといえます。
一方、文献史料にも陶器生産技術の水準を窺わせる興味深い記述がみられます。『琉球館文書』1807 年の項では、薩摩から発せられた「近年琉球経由で運ばれる中国産磁器の品質が低下しているが、琉球で生産した偽物を輸出しているのではないか」との疑義に対し、琉球は「中国産磁器に似せた製品の生産は禁止している」と答えています。この内容からは、当時の認識として、少なくとも薩摩は琉球に中国産磁器の偽物を生産する技術があると考えていること、また琉球も技術自体の存在は否定していないことがわかります。遺跡から出土する上質な施釉陶器は、もしかしたらこのような技術で生産された製品なのかもしれません。〔後掲沖縄県立埋蔵文化財センター 2016、14枚目/コラム4 琉球でつくられた「輸入陶磁器」〕
〔後掲沖縄県立埋蔵文化財センター-2016、14枚目p12〕-300x210.jpg)
本稿の結論として──1682年「琉球焼壺屋統合」は薩摩向けの「正史」でしかないと想像します。
この年、中国・清に渡り、十余年、釉薬技術を学んできた平田典通(ひらた てんつう、1641(尚賢元)年生-1722(尚敬10)年没)が製作した「龍頭棟飾」が、首里城に据えられてます。そこで首里王権の「王立窯業」創業祭をどこかで行い、壺屋で創業した──という形式をとったのだと思われます。

ただし、正規ルートで正しく学んだ平田さんの窯業は、そのまま普及した形跡がない。薩摩が実力本位で連行してきた朝鮮陶工の窯には、全く太刀打ちできなかったのでしょう。──あれ?こんな話、何処かで聞いたぞ?
そう、平田典通と同じ頃、和紙作りでヤマトへ官費留学した憑武さんの顛末です。
1694年(x+8) 憑武帰国
紙漉主取に任ぜらる。〔琉球国由来記〕
山川村に紙漉所設置〔南島風土記〕
同年 薩州で造紙法を学んだ関忠勇、造紙長(主取)に任ぜられ自宅で紙製造〔「球陽」附巻尚貞王二七年(一六九五)条〕
1695年
17C後半の清琉交易初期、海の向こうのプレイヤーが清・薩摩に交代し、南洋に華商・西欧勢力が暗躍する「大航海時代」の端緒、首里王権は各種官営産業を強化しようとしました。──形態からして、薩摩のそれに影響されたような印象を受けます。
ただそれは概ね、小成功か、神輿に終わった。陶器も和紙も、


■レポ:那覇牧志地下宮殿
それで結局、花笠食堂裏の水神とは何だったのでしょう?結論としては…全く分かりません。
ただ、この日にちらりと見てスルーしてしまった、希望ヶ丘のガマと複合して考えるべきだと思われます。
・牧志の公設市場に繋がるアーケード「平和通り」の中程,東に折れる小道に,かつて地元の人しか行かなかった?「花笠食堂」があります。
・その先はなにやら薄暗い木立に覆われた小高い丘になりますが,実はその丘全体が「希望ヶ丘公園」なのです。
・希望ヶ丘はすべて琉球石灰岩で構成されており,前述の小道から公園に入って左(北)に向かうと,御嶽(拝所)に行き着きます。 これが本壕の「坑口:A」です。
・丘の反対側は,新しくなった「神里原通り」に面しており,その斜面に金網で覆われた「坑口B」があります。 この二つは中で繋がっており,共に「希望ヶ丘公園の壕」と呼ばれています。
・壕とは直接関係がありませんが,この公園の印象は「猫」の多さが第一です。〔後掲地形・地質情報ポータルサイト〕
本稿で戯れに書いてる「御嶽のヌシ猫」の御同業と思われる猫が、確かに、明らかに多い。これは希望ヶ丘を実際に生活圏にしておられる方々が相当の率で記していることです。
さて、希望ヶ丘の地下構造を推測してみましょう。
「希望ヶ丘」の地下壕

坑口Aの隙間から撮した御嶽の内部です。写真右奥の天井(天盤)は,かなりの規模で崩壊しています。
ほぼ水平に地層の境界があり,上は「琉球石灰岩」で,下は「島尻層群泥岩(クチャ)」と思われます。
崩壊しているのは,クチャの部分です。 軟らかいので,この地層を「御嶽」あるいは「地下壕」のために掘削したのでしょう。
注 右側の写真の「※」は例のノラ猫です。 いったいどこから入り込んだのでしょうか。 撮影:2016年11月・2018年5月。〔後掲地形・地質情報ポータルサイト〕
まず、猫の謎を先に解くと、この猫たちは地下水源を目当てにしていると思われます。汚濁のなく外敵の少なく涼しいこの洞窟は、猫には理想的な住み家なのでしょう。
最も重要なのは、どういう地学的理由かはともかく、柔らかいクチャ(島尻)層があり、それをどこかの時代に「掘削」した人力があったと推測されることです。戦時に避難壕として堀った可能性も否定はできませんが、これだけ何も伝わらないこと、かつ未だに纏う聖性から考えると、それ以前の時代に堀ったと考えるのが妥当です。とすると、多分目的は水源確保です。
本稿で訪れた「水神」は、その掘削年代前後に、恵みの水を拝んだものだと推定されます。

「坑口B」から内部を撮影しました。
ゴミ類とともに大小の礫が散乱しています。
これは,大雨が降った時に道路に溢れた水が壕内に流れ込み,細かな泥や砂とともに奥に流れ去ったことを意味しています。
その大量の水はどこに行ってしまったのでしょうか。地質学的に大いに興味が湧きます。 撮影:2008年02月。〔後掲地形・地質情報ポータルサイト〕
地形・地質情報ポータルサイトさんは見つけたのは、少なくとも現代のある一時における、坑口より下に水が流れ落ちていた痕跡です。つまり、どこまで人為的に制御されたものかは不透明ながら、希望ヶ丘の地下には大げさに言えば地下ダムのようなものがある可能性が出てきます。


「何か」であろうと思われる丘
…という類の巨大な構造ではないのでしょうけれど、少なくとも内地にある普通の井戸、普通の洞窟という訳ではなさそうな手触りなのです〔内部リンク→m19S_12第三十八波mm喜界島m地下宮に怯む/■レポ:喜界島地下王国に百合の咲く/地下ダム Underground Damsの定義 ▼展開〕。
ところで、この「希望ヶ丘」の名称は、間違いなく現代になって無難な公園名として付されたものです。戦前にあったであろう元の名前は、どうしても分かりません。また、水神、ガー、洞窟のどこかに祀られたであろう神名にも、いかにしてもたどり着けません。
下記は、水神のすぐ脇に2024(令和6)年に竣工された「屋台村」棟について、実施者の企業側代表が語っている文章です。
コンダクト株式会社(和田克之代表取締役):屋台村建築プロジェクトの企画・運営・建築主。福岡県など九州各地で不動産開発を手がけ、地域のもつ問題や課題を、その地域の学術機関と連携して解決し、そこに住んでいる方々と共に発展していくという企業理念を持っている。
建築予定地である牧志希望ヶ丘公園裏は、国際通り近くの好立地ながら歴史的な背景もありこれまで開発が進まない課題のある地域だが、琉球大と県立芸大と連携して屋台村を建築し、それが地域コミュニティに不可欠な資産となり、多くの人々の笑顔と利益をもたらすことを目指している。〔後掲コンダクト㈱ほか〕
この屋台村は営業時間深夜零時で、公衆トイレ設置なので、個人的には今後も立ち寄ると思います。有難や…というのはともかく。
地元の方々の間には伝わっている「歴史的な背景」が、何かしら存在するらしいのです。この文脈からすると、公園の開発に「地域コミュニティ」が非常にナイーブな感覚を持って、多分反対の声又は警戒感が強い。また、恐らく風水の立場からすると、北西のナイクブ古墓群、南東の壺屋の拝所などと連なる、有意な微高地と捉えるのが自然な位置です。
「地下世界ペルシダー」である可能性はないでしょうけど──敷地面積5百平米弱のこの建物で「侵略」するのにもこれほど臆病に行われているのは、何か重い時空であることを逆に傍証していると感じます。知らんけど。

〉〉〉〉〉参考資料
(BAZ)BAZARASU タイのお酒-アジアンリカー&アジアンフード通販のBAZARASU(バザラス)
URL:http://www.bazarasu.jp/c_thai_land/c_tansiki/index.html
(CNN)世界最古のワイン、8千年前の痕跡見つかる ジョージア – CNN.co.jp URL=https://www.cnn.co.jp/fringe/35110427.html
(FUN)FUNNY Tips 更新日:2021年2月16日/ペットボトルに口を付けずに飲むクセの3つの理由&飲むコツを紹介!
URL=https://www.jsa-shinya.jp/trumpet-drinking-reason/
(RYU)RyuQの沖縄紀行 最終更新日:2025年12月26日(金) おきなわ物産品と沖縄情報 やちむんの歴史と技法を見る『壺屋焼物博物館』どんな場所?
URL=https://ryuq-oki130.ryukyu/thing_of_okinawa/spot/yakimonomusiumt/26108/
(TOW)towncheck 沖縄県/那覇市/壷屋/一丁目の人口・世帯 沖縄県那覇市壷屋一丁目の人口・世帯 URL=https://towncheck.jp/areas/47201013001/detail
(いしげ)石毛直道の発酵コラム 第4回「酒」│発酵食品名鑑|未来シナリオ会議|キリンホールディングス
URL:https://wb.kirinholdings.com/about/activity/ferment/sake/column_04.html
(いつし)一生一石/ケンディ おっぱい徳利・水差し
URL:http://erikaishikoro.blog.fc2.com/blog-entry-4698.html
(えこは)一般社団法人 エコハウス研究会/京都盆地の地下に巨大な湖
URL:https://ecohouse.ac/common/ecohouse/column/kyoto-bonchi.html
(おきなわけんきよう)沖縄県教育庁文化課 1999 「沖縄県文化財調査報告書136:湧田古窯跡」沖縄県教育委員会
※全国文化財総覧 https://sitereports.nabunken.go.jp/ja/22079
(おきなわけんりつま)沖縄県立埋蔵文化財センター 2016「湧田古窯跡出土品展」沖縄県立埋蔵文化財センター
※全国文化財総覧 https://sitereports.nabunken.go.jp/ja/21610
(おきなわよ)OKINAWA41 投稿日:2018.11.02 日本で唯一の“寝かせる”という伝統をもつスピリッツ!?─600年の歴史を誇る泡盛の魅力─
URL:https://www.okinawa41.go.jp/reports/15003
(ぐだぐ)ぐだぐだβ 旧那覇地区の解放順序 URL=https://gdgdwktk.blog.shinobi.jp/%E9%82%A3%E8%A6%87/%E6%97%A7%E9%82%A3%E8%A6%87%E5%9C%B0%E5%8C%BA%E3%81%AE%E8%A7%A3%E6%94%BE%E9%A0%86%E5%BA%8F
(ごとう)後藤祥子 2026/004_チチャ(口噛み酒)づくり体験 URL=https://note.com/sagoto/n/nb71486b7a515
(こくど)国土交通省総合政策局観光事業課 平成20(2008)年2月「多様な食文化・食習慣を有する外国人客への対応マニュアル
~外国人のお客様に日本での食事を楽しんでもらうために」
※観光庁 ホーム > 施策 > 国際観光 > 過去の施策 > 多様な食文化・食習慣を有する外国人客への対応マニュアル
URL=https://www.mlit.go.jp/kankocho/shisaku/sangyou/taiou_manual.html
/外国人客接遇マニュアルについて
PDF URL=https://www.mlit.go.jp/common/000059429.pdf
(こんだ)コンダクト株式会社 + 沖縄県立芸術大学 + 琉球大学「酔夢芝居舞(すいむしばいまい) クヮラクヮラ ~牧志下町・屋台村~」
URL=https://www.u-ryukyu.ac.jp/wp-content/uploads/2024/04/0709be0bf9b9f63b9f2e420315defe03.pdf
(しゆり)世界遺産 首里城 – スマートフォン版 首里城を飾る瓦~龍頭棟飾~(りゅうとうむなかざり) | 首里城豆知識~御城物語~ | 首里城について | 首里城 ‐ 琉球王国の栄華を物語る
URL: https://oki-park.jp/sp/shurijo/about/3798/3834
(ず__)ず 2016/05/28 今と昔の沖縄,PCやガジェット,ネットの噂などなど/那覇市の戦後の密集市街地と真和志市
URL=https://www.zukeran.org/shin/d/2016/05/28/naha-and-mawashi/
(ちけい)地形・地質情報ポータルサイト /沖縄戦の記録 希望ヶ丘公園の壕(No.43)那覇市牧志3丁目 最終編集日:2024年12月27日
URL=https://www.web-gis.jp/GS_Okinawa-Gama/naha-43-sm.html
(とうよ)東洋陶磁学会 2025年12月12日~15日開催 第52回大会 ①沖縄出土貿易陶磁 ②沖縄陶器(近世、近・現代)
URL=https://toyotoji.com/convention/8409/
/第52回大会発表要旨 PDF URL=https://toyotoji.com/cms/wp-content/uploads/2025/06/52convention_summary.pdf
(とぐり)戸栗美術館 2010年11月号/学芸の小部屋
URL=https://toguri-museum.or.jp/gakugei/back/1011.php
(なはししみん)那覇市市民文化部文化財課 2021 『那覇市文化財調査報告書114:壺屋古窯群』那覇市
※全国文化財総覧 URL=https://sitereports.nabunken.go.jp/ja/94715
(なはしまちな)那覇市まちなみ共創部 建築指導課 審査グループ 更新日 令和8(2026)年1月14日: トップページ > くらし・手続き > 住まいとまち・ライフライン > 建築 > 建築確認に関する届出等 > 地区計画一覧
URL=https://www.city.naha.okinawa.jp/kurasitetuduki/life/1002107/1002119/1002121.html
(なはしりつつ)那覇市立壺屋焼物博物館 展示の概要
URL:http://www.edu.city.naha.okinawa.jp/tsuboya/gaiyou2.html
(ふじさ)藤坂環/無門関第四十則「趯倒浄瓶」①|
URL:https://note.com/shimalis/n/nfc0b3def4a3a
(ぶんか)文化庁/浄瓶 文化遺産オンライン URL=https://bunka.nii.ac.jp/heritages/detail/589706
(みろく)みろくや/長崎ちゃんぽん・皿うどんのみろくや | 第352号【世界を巡ったかたち ケンディ】
URL:https://www.mirokuya.co.jp/blog/blog_20100414
(よねだ)米屋武文・宮本拓 1999「アフリカの伝統的酒類」『研究紀要』13-1号, p71-87
※静岡県立大学・短期大学部機関リポジトリ URL=https://u-shizuoka-ken.repo.nii.ac.jp/records/4074
(りゆう)琉球大学 附属図書館 琉球・沖縄関係貴重資料デジタルアーカイブ Ryukyu/Okinawa-related Materials Digital Special Collections 薩琉往復文書集 [琉球館文書] URL=https://shimuchi.lib.u-ryukyu.ac.jp/collection/nakahara/na00301


アマゾン熱帯雨林の先住民、アチュアル族製造 2026〔後掲後藤〕-244x300.jpg)


と瓢箪製のカップで製品を飲む人たち(下)(ケニア国内にて著者撮影)〔後掲米屋ほか、5枚目p75〕-246x300.jpg)
に集まる人々〔wiki/プルケ〕-300x291.jpg)

〔後掲文化庁〕-140x300.jpg)
Your point of view caught my eye and was very interesting. Thanks. I have a question for you. https://www.binance.com/pt-PT/register?ref=V3MG69RO